V1 KOMPAKT
BYGGAREA
135 M2
BOSTADSAREA
117 M2
RUM
5
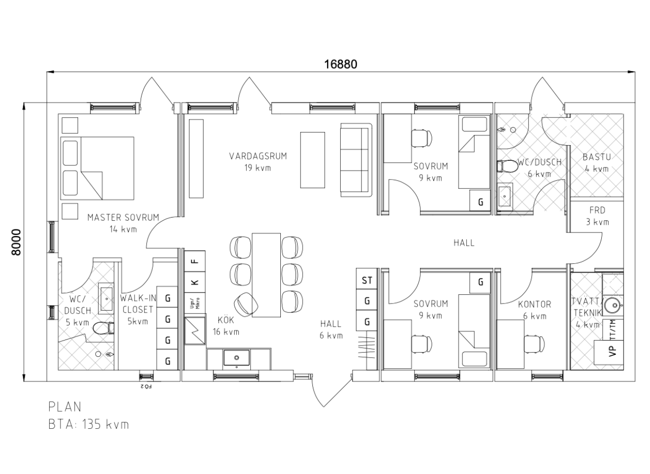
V1-Kompakt är en version av vår populära V1-modell som erbjuder samma eleganta skandinaviska design, funktion och stil, men i ett kompakt format. Den stående träpanelen och de stora fönsterpartierna skapar en varm och välkomnande exteriör, medan insidan fylls av naturligt ljus och en öppen atmosfär. Perfekt för dig som söker ett hem med välplanerade ytor för umgänge, samtidigt som varje rum erbjuder lugn och avskildhet. V1-Kompakt kombinerar komfort och estetik på ett sätt som passar både för vardagsliv och avkoppling.
Planritningen för V1-Kompakt bygger på samma genomtänkta design som originalmodellen V1. Den öppna planlösningen mellan kök, matplats och vardagsrum gör de sociala ytorna till husets hjärta, perfekt för umgänge och gemenskap. Sovrummen är smart placerade för att ge avskildhet och rofylld vila, och master sovrummet har fortfarande en walk-in closet och eget badrum för extra komfort. Trots sin mindre storlek har V1-Kompakt också en bastu i anslutning till ett badrum, för den som värdesätter avkoppling och välmående. Varje kvadratmeter är optimerad för att skapa ett bekvämt och modernt hem.
Prispaket
Är du händig och tycker om att snickra? Då passar vårt klimatskalspaket utmärkt. Vi levererar huset utvändigt klart, och isolerat fram till installationsskiktet (och innerväggar), och du får färdigställa huset invändigt enligt egna preferenser. (Här ingår ej transport, markarbeten/grund, invändiga arbeten, el- och VVS- installationer, samt kommunhantering.)
Pris: (Kontakta oss för anbud)
I vårt nyckelfärdiga paket levererar vi huset klart både utvändigt och invändigt. (Här ingår ej markarbeten/grund, inkoppling till VA och el, samt kommunhantering.)
Pris: (Kontakta oss för anbud)
I vårt totalentreprenadspaket erbjuder vi en helhetslösning. Vi förbereder mark och grund, levererar huset klart både utvändigt och invändigt, kopplar huset till VA och el, samt sköter all kontakt med kommunen.
Pris: (Kontakta oss för anbud)


